Client
Mahima Group
NA
Type
Residential
NA
Built-up Area
66890
sqm
NA
Site Area
1876
sqm
NA
Status
Completed
NA
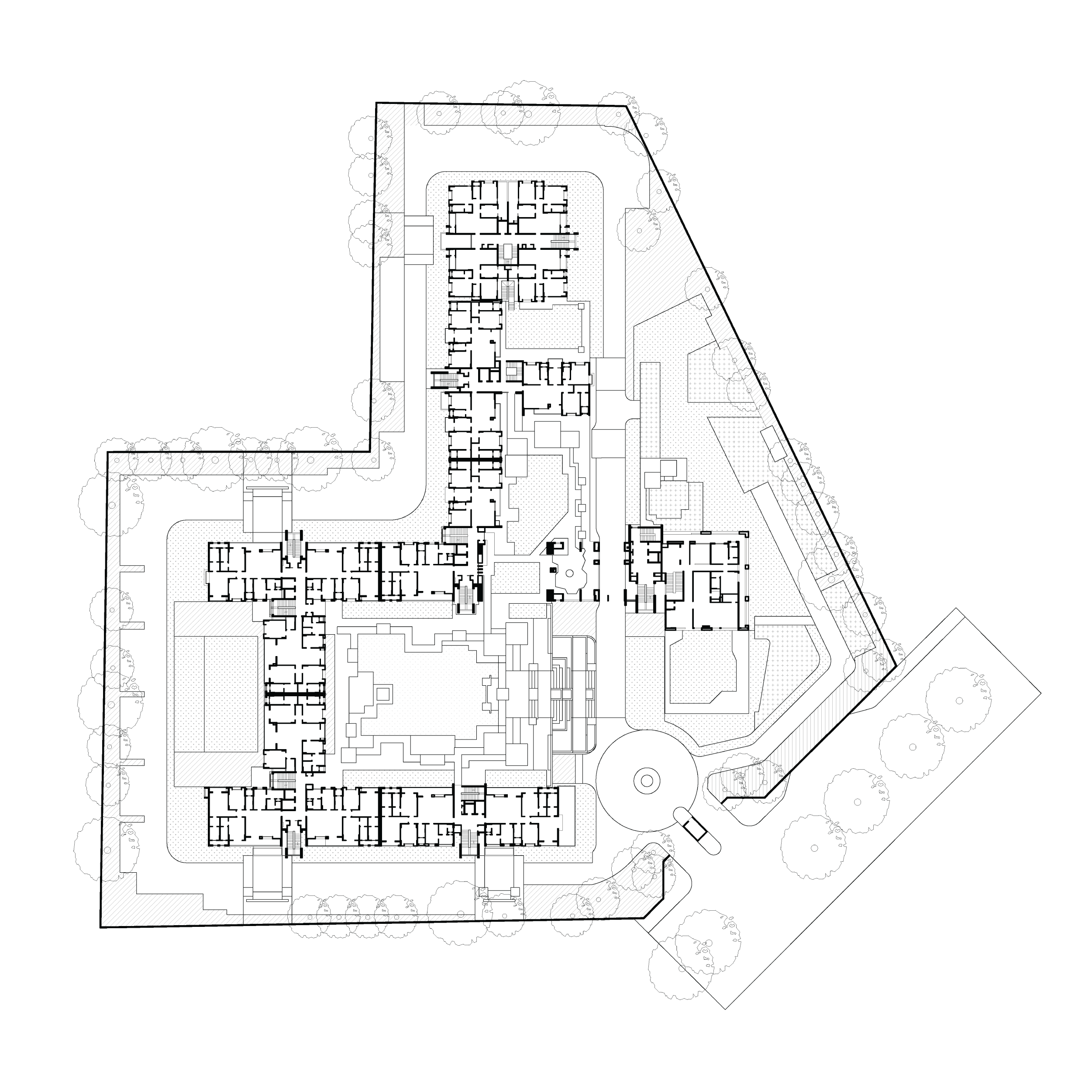
Mahima Elanza set out to redefine existing practices and notions of residential apartment design in the city. The core design principle of houses placed around courtyard spaces in vertical towers of stepping form gives the development its unique character. This is also accentuated by large multi-leveled voids in the towers that open up sky views at the lower levels and interconnect the gardens. The gardens on the ground seamlessly integrate with those on the podium allowing residents to access the parking areas, gardens, and club spaces on both levels to various lobbies and upwards to the sky-walk on the 14th level. The gardens continue at the sky walk which connects various tower lobbies and the recreational activities of the Club at that level. It offers its residents a sunny walking and basking areas especially suited for the cold winters in Jaipur.
Mahima Elanza set out to redefine existing practices and notions of residential apartment design in the city. The core design principle of houses placed around courtyard spaces in vertical towers of stepping form gives the development its unique character. This is also accentuated by large multi-leveled voids in the towers that open up sky views at the lower levels and interconnect the gardens.
Mahima Elanza set out to redefine existing practices and notions of residential apartment design in the city. The core design principle of houses placed around courtyard spaces in vertical towers of stepping form gives the development its unique character. This is also accentuated by large multi-leveled voids in the towers that open up sky views at the lower levels and interconnect the gardens.
Team
Sharad Maithel, Puneet Dua, Rohan Kumawat






No items found.