Client
Laghu Udyog Bharti
NA
Type
Institutional
NA
Built-up Area
10752
sqm
NA
Site Area
4006
sqm
NA
Status
Completed
NA
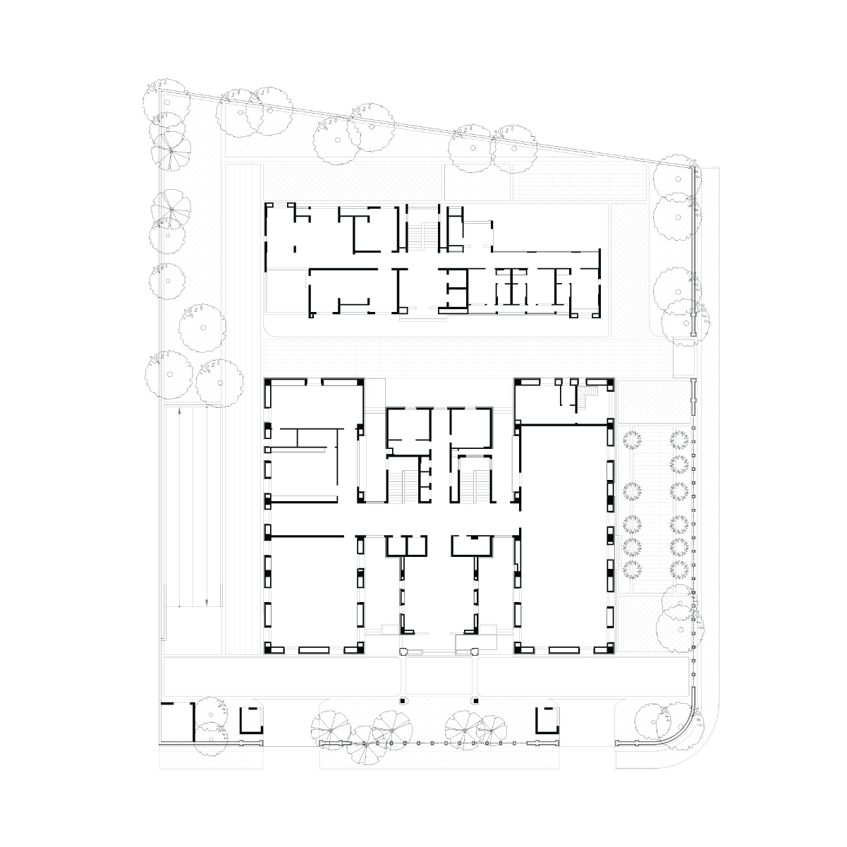
The LUB Training Center is a space dedicated to fostering growth, learning, and opportunity. As an organization focused on skill development and the creation of micro businesses, it empowers individuals to build sustainable futures and strengthen local communities.
Reflecting this vision, the building is designed with simplicity and purpose. Its institutional character is enriched by the use of traditional jali screens that bring light and ventilation into the interiors while creating a sense of openness. Functional meeting rooms provide a setting where ideas can take shape and opportunities can be nurtured, aligning seamlessly with the center’s mission.
The result is an environment that not only supports the programs within but also symbolizes the values of accessibility, empowerment, and progress. It stands as a catalyst for innovation and community-driven growth.
Mahima Elanza set out to redefine existing practices and notions of residential apartment design in the city. The core design principle of houses placed around courtyard spaces in vertical towers of stepping form gives the development its unique character. This is also accentuated by large multi-leveled voids in the towers that open up sky views at the lower levels and interconnect the gardens.
Mahima Elanza set out to redefine existing practices and notions of residential apartment design in the city. The core design principle of houses placed around courtyard spaces in vertical towers of stepping form gives the development its unique character. This is also accentuated by large multi-leveled voids in the towers that open up sky views at the lower levels and interconnect the gardens.
Team
Sharad Maithel, Rameez Raza, Balwant Singh, Puneet Dua






No items found.