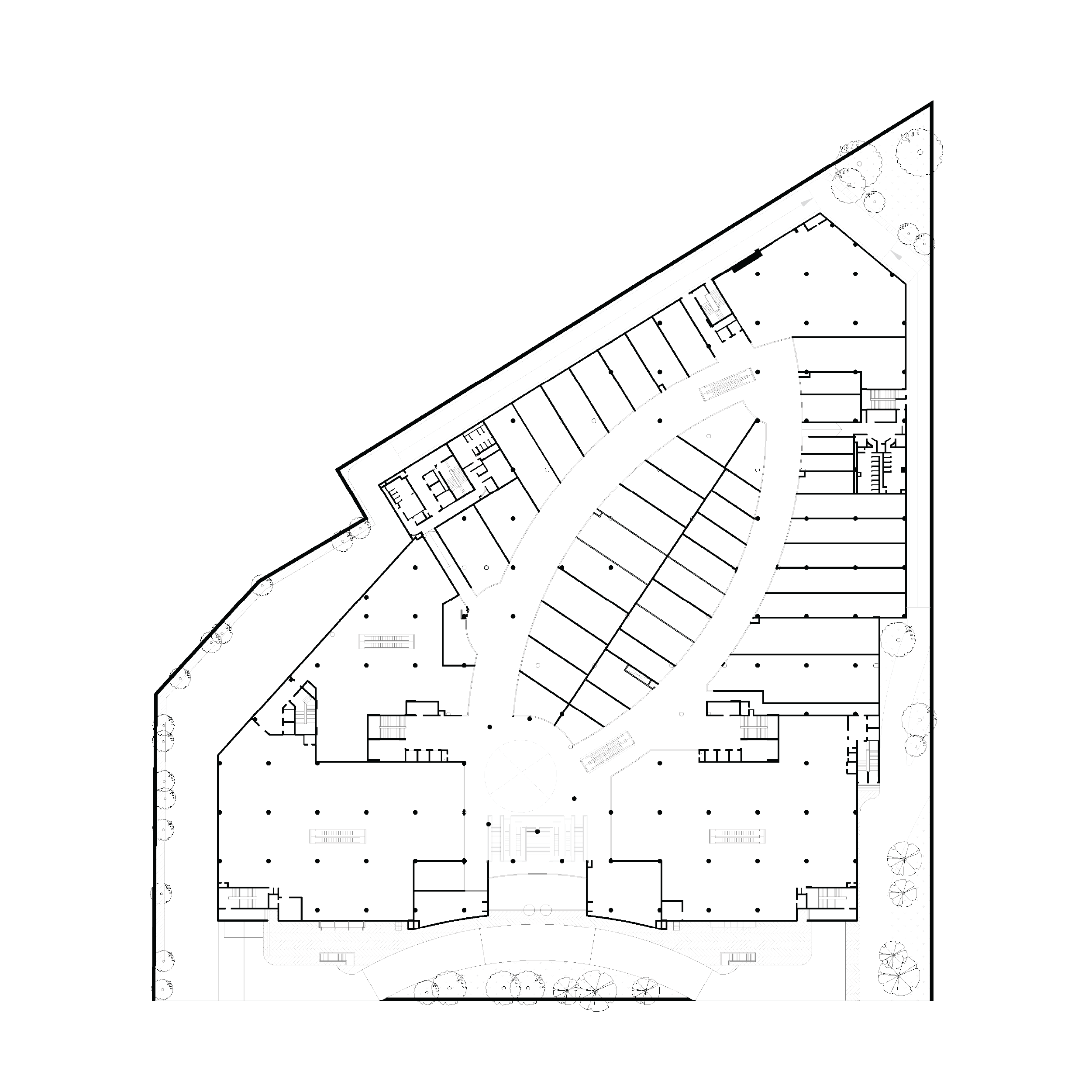
Mantri Square situated in the old locality of Malleswaram was planned as the largest retail and entertainment destination in the country at the time of inception with built up area of 1.5 million sqft on a site of 6 acres. Originally a joint development with the Bengaluru Metro Rail, it ended as being an independent building with a bridge connectivity to the eponymous metro station.
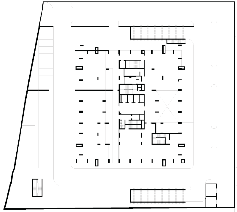
Being sited on a very busy arterial street of the area, it had to demonstrate efficient site circulation with distinct lanes demarcated for the private cars, cab services and pedestrians respectively. An independent entry route is planned for the shop owners, staff, and service vehicles. The parking areas accommodating 1200 cars are also categorically divided accordingly in different color codes on the two underground and surface parking levels.
The mall layout has a circular entry atrium dispersing the users to the lower supermarket and bazaar or up to the main mall where an oval atrium with a central island and criss crossing corridors makes the never ending ‘8’ loop walk across the storefronts The mall houses 250 retail outlets including multiple anchor stores and vanilla stores of various configurations. The top level of the mall has a large food court encircled by restaurants, a six-screen multiplex and a bowling alley and game center. The striking tensile and glass roof over the atrium provides optimum natural light to the entire space within and is a prime example of German engineering and eye for detail.
The circular atrium floor is also used for events with the onlooking corridors above as the spectator galleries.
At 1.5 million sq.ft., Mantri Square enjoys the credentials of being the largest mall in India (in the year 2009). It has been accoladed for its meticulous planning and execution. This mall exemplifies our ability to deliver a complex brief while meeting the demands of a diverse group of the leading retail brands.




