Client
Bhartiya Group
NA
Type
IT Building
NA
Built-up Area
139000
sqm
NA
Site Area
505857
sqm
NA
Status
Completed
NA
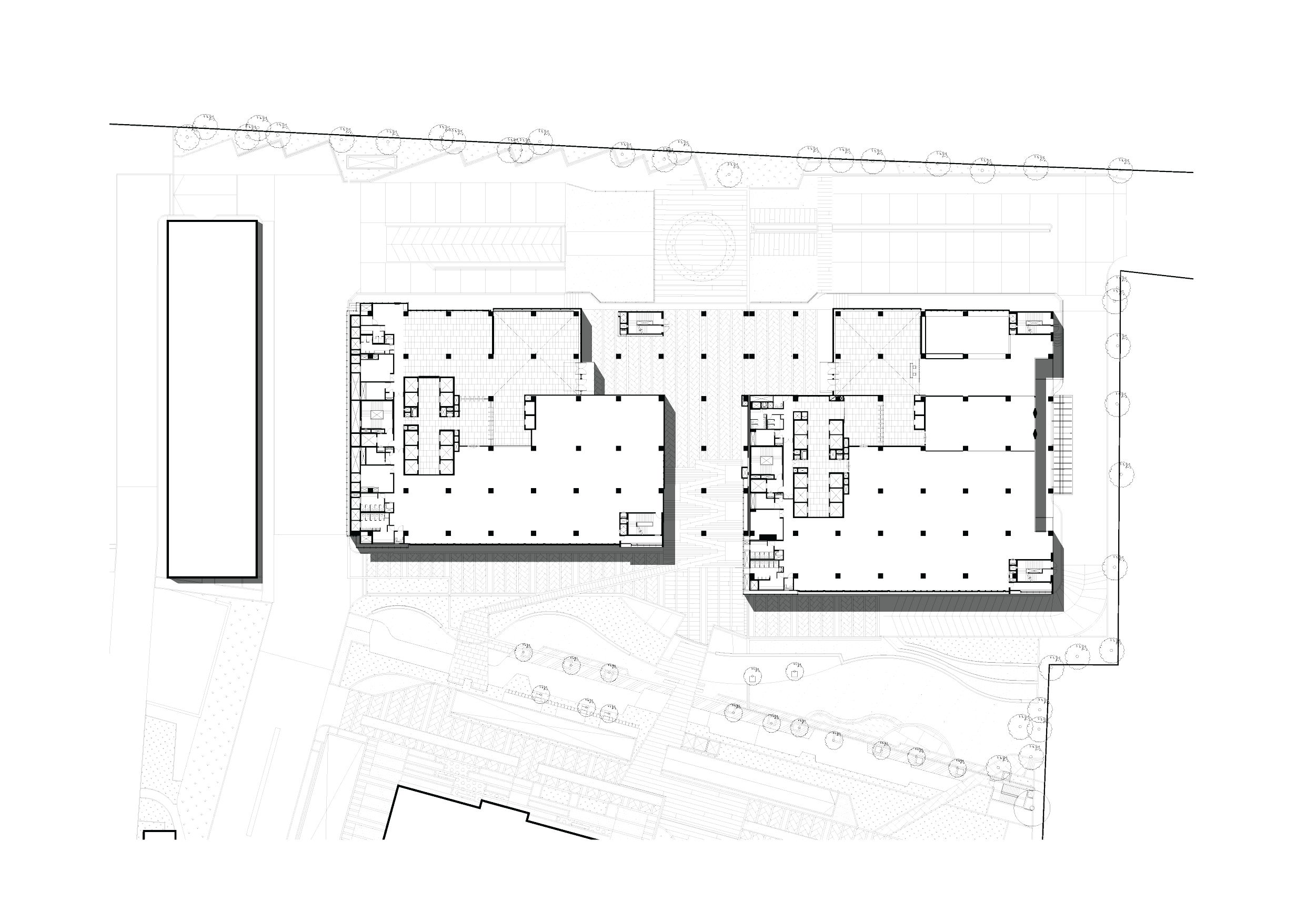
BCIT SEZ 3 is the third addition to the IT campus of Bhartiya City, an ambitious 125-acre integrated township to the north of Bangalore. The large format corporate building with 1.5 million sq ft of leasable IT space has two adjoining towers. Their reception lobbies are accessed through a large covered pedestrian plaza with landscaped break out spaces. These connect through a stramp at the rear to the central gardens of the campus, the driveways, parking and bus drop zones and other adjoining IT buildings.
The porosity of the triple and double- heighted plaza volume experientially lightens the effect of the large towers above. The building design follows the core principles of sustainability and energy consciousness.
Mahima Elanza set out to redefine existing practices and notions of residential apartment design in the city. The core design principle of houses placed around courtyard spaces in vertical towers of stepping form gives the development its unique character. This is also accentuated by large multi-leveled voids in the towers that open up sky views at the lower levels and interconnect the gardens.
Mahima Elanza set out to redefine existing practices and notions of residential apartment design in the city. The core design principle of houses placed around courtyard spaces in vertical towers of stepping form gives the development its unique character. This is also accentuated by large multi-leveled voids in the towers that open up sky views at the lower levels and interconnect the gardens.
Team
Sharad Maithel, Rashmi Chopra, Meenal, Sujith Jacob







No items found.