Client
K.M. Vyapar Pvt. Ltd
NA
Type
Hotel
NA
Built-up Area
13800
sqm
NA
Site Area
5260
sqm
NA
Status
On-going
NA
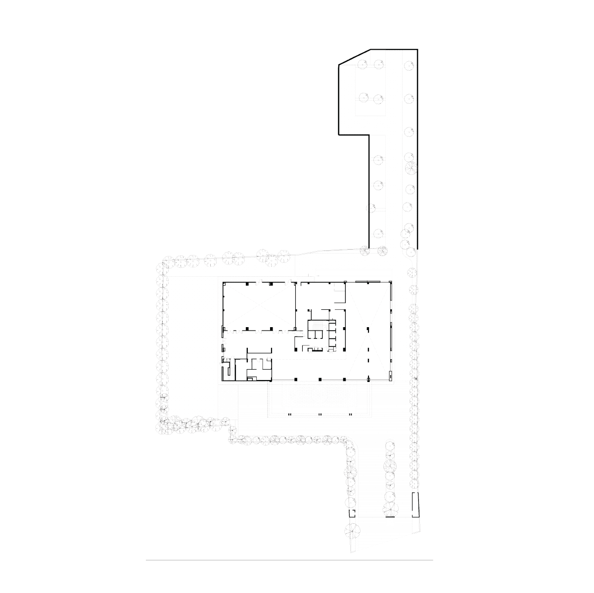
Located in the heart of Ayodhya, the hotel redefines contemporary hospitality while embracing the city’s deep cultural and spiritual heritage. Conceived as a tranquil retreat for pilgrims and travelers alike, the design blends timeless Indian architectural sensibilities with modern comfort.
The project focuses on creating layered experiences through courtyards, shaded corridors offer a sense of calm. Warm materials, filtered light, and locally inspired details enrich the spatial atmosphere, celebrating the essence of Ayodhya in a refined and timeless manner.
Mahima Elanza set out to redefine existing practices and notions of residential apartment design in the city. The core design principle of houses placed around courtyard spaces in vertical towers of stepping form gives the development its unique character. This is also accentuated by large multi-leveled voids in the towers that open up sky views at the lower levels and interconnect the gardens.
Mahima Elanza set out to redefine existing practices and notions of residential apartment design in the city. The core design principle of houses placed around courtyard spaces in vertical towers of stepping form gives the development its unique character. This is also accentuated by large multi-leveled voids in the towers that open up sky views at the lower levels and interconnect the gardens.
Team
Amit Singhal, Rudra Sharma, Girdhari Lal Saini, Mahendra Suthar






No items found.