Lehariya
Jaipur, Rajasthan
In collaboration with
OBR (Principal Architect)
Client
KGK Infrastructure
NA
Type
Offices
NA
Built-up Area
52215
sqm
NA
Site Area
13354
sqm
NA
Status
On-going
NA
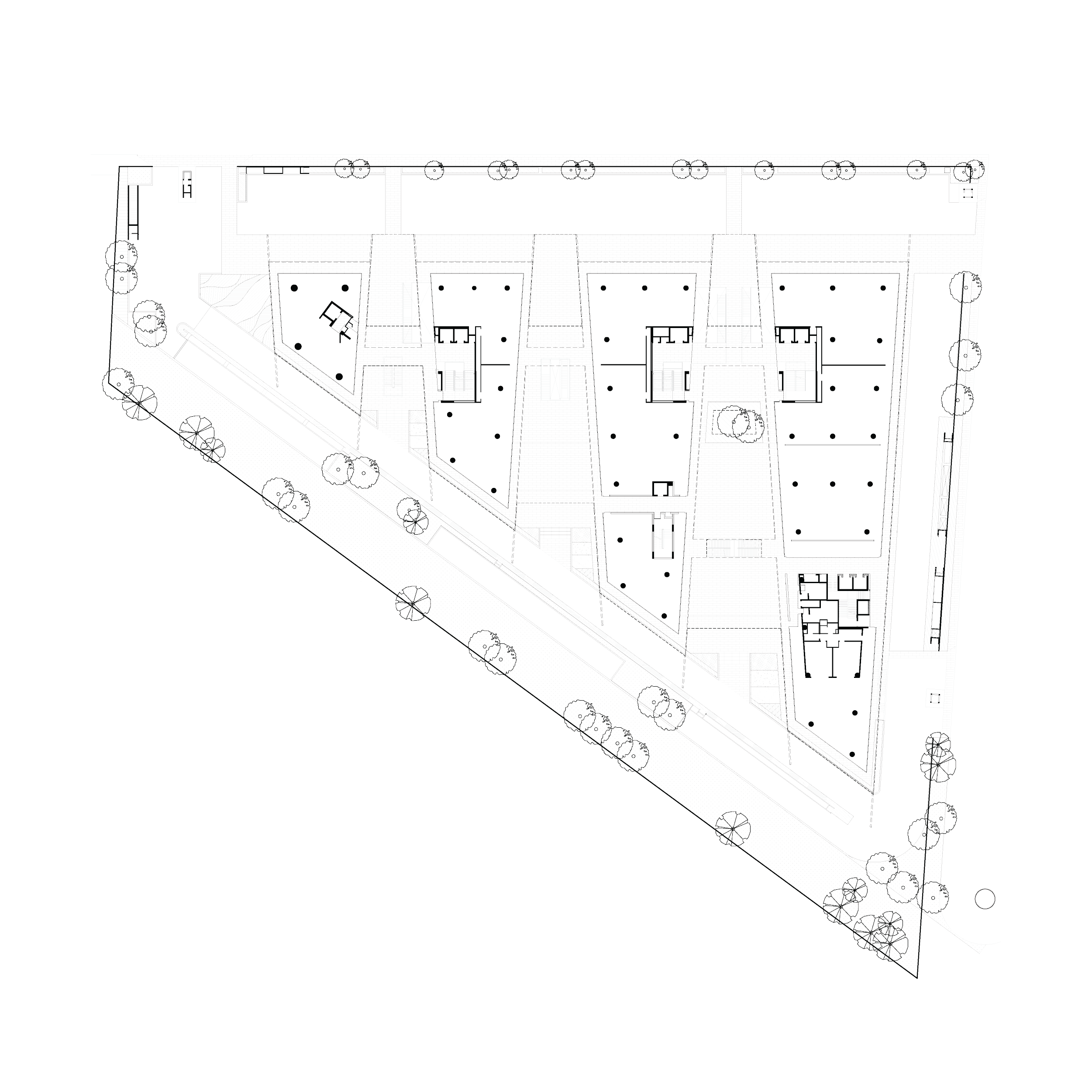
Leharia is a collaborative project with the Italian firm OBR leading the concept design. It promises a visually striking and sustainable building with glass and metal screen façade patterned in the traditional colorful tye and dye pattern called Lehariya, meaning waves or wavy.
The office complexes comprise four towers with interconnecting bridges at its cores. The entire floor plates of its offices are designed to be enveloped with the Lehariya screen on all sides, opening views to the outside while being screened from the solar glare. Its cantilevered and angular projections complement the views of the airport and runway on its south.
The building podium is treated with a detailed complex pattern in a single stone material in varying finishes and lends a minimalist formal character to the building and is a perfect setting for the dramatic colorful façade to follow above.
Mahima Elanza set out to redefine existing practices and notions of residential apartment design in the city. The core design principle of houses placed around courtyard spaces in vertical towers of stepping form gives the development its unique character. This is also accentuated by large multi-leveled voids in the towers that open up sky views at the lower levels and interconnect the gardens.
Mahima Elanza set out to redefine existing practices and notions of residential apartment design in the city. The core design principle of houses placed around courtyard spaces in vertical towers of stepping form gives the development its unique character. This is also accentuated by large multi-leveled voids in the towers that open up sky views at the lower levels and interconnect the gardens.
Team
Sharad Maithel, Amit Singhal, Shikhar Gupta





No items found.