Client
Modern Constructions
NA
Type
Mixed-Use
NA
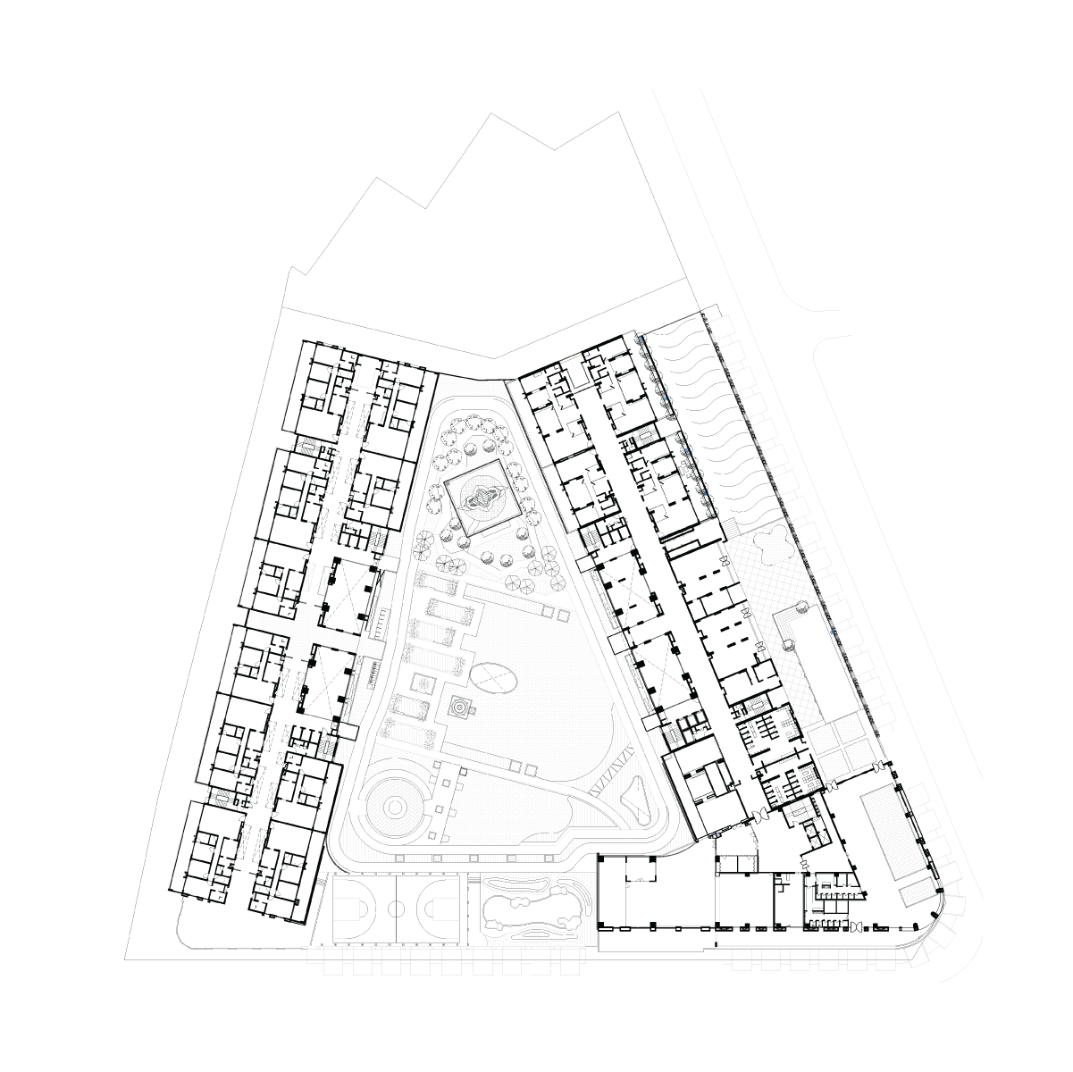
Built-up Area
184784
sqm
NA
Site Area
22743
sqm
NA
Status
On-going
NA
The mixed used development is our company’s first venture in Congo (DRC) on the African subcontinent. Located close to Congo River in the heart of the capital city Kinshasa, the Grand Residence addresses the demand for high quality residential developments in the city. River views from wide rain protected balconies and ample wind channeling through the apartments characterize the apartment design. Generous community spaces offer comfort and facility to residents in forms of parking, lobbies, podium gardens and a Clubhouse. The shopping promenade at ground level with high street retail stores make a bold statement at the prominent junction of the city.
Mahima Elanza set out to redefine existing practices and notions of residential apartment design in the city. The core design principle of houses placed around courtyard spaces in vertical towers of stepping form gives the development its unique character. This is also accentuated by large multi-leveled voids in the towers that open up sky views at the lower levels and interconnect the gardens.
Mahima Elanza set out to redefine existing practices and notions of residential apartment design in the city. The core design principle of houses placed around courtyard spaces in vertical towers of stepping form gives the development its unique character. This is also accentuated by large multi-leveled voids in the towers that open up sky views at the lower levels and interconnect the gardens.
Team
Sharad Maithel, Rameez Raza, Balwant Singh, Vikas Vishnoi, Puneet Dua


















No items found.